Обяви 0 За нас Контакти
Продава 3-СТАЕН
град Пловдив, Остромила
128 210 €
250 756.96 лв.

(1 135 €, 2 219.87 лв./m2)
Не се начислява ДДС
История на цената
Коригирана в 12:06 на 17 април, 2026 год.
Обявата е посетена 1172 пъти.
Площ:
113 m2
Етаж:
2-ри от 3
Строителство:
Тухла, Ще бъде въведен в експлоатация 2025 г.

Описание на имота:


Титан Пропъртис има удоволствието да Ви представи тристаен апартамент, разположен в търсения район Остромила, в новостроящ се комплекс от три сгради.

Характерно за района е ниското и добре планирано строителство, тишина, чист въздух, панорама към Родопите, даващи спокойствие и уединеност.

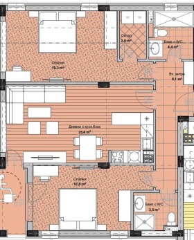
Имотът разполага с площ от 113 кв.м., разпределена по следния начин: Входно антре, дневна с кухненски бокс, две спални, две бани и тоалетни, тераса.
Отопление - електичество.
Има възможност за закупуване на гараж на цени от 24 000 до 25 000евро в зависимост от квадратурите; паркоместата са на стйност от 11 000 до 12 000евро.

Този апартамент се предлага на шпакловка и замазка и е идеален за хора, които търсят съвременен начин на живот в спокойна и зелена обстановка!

За оглед на това и други атрактивни предложения, не се колебайте да ни потърсите на посочения телефон или да ни изпратите данните си чрез формата за запитване на сайта.
Референтен номер: 82191
Особености
Тухла
Асансьор
За контакт:
0895671205
Агенция:
ТИТАН ПРОПЪРТИС ПРОДАЖБИ ПЛОВДИВ
0889088654
ТИТАН ПРОПЪРТИС ПРОДАЖБИ ПЛОВДИВ logo
В imot.bg от 2024 г.
titanplovdiv.imot.bg
Адрес:
област Пловдив, гр. Пловдив, гр.Пловдив, бул. Христо Ботев 91, етаж 5, офис 10
http://titanproperties.bg
ИЗПРАТИ ЗАПИТВАНЕ
ИЗПРАТИ ЗАПИТВАНЕТО

Продава 3-СТАЕН
град Пловдив, Остромила
Обява: 1c176605017697868

128 210 €
250 756.96 лв.
История на цената
(1 135 €, 2 219.87 лв./m2)

Не се начислява ДДС
ЗАПАЗИ ОБЯВАТА

Местоположение: град Пловдив, Остромила

Допълнителни данни за имотите в района и сравнение с други райони

Покажи

Период

и 5 месеца

* Средните цени са определени чрез медианна стойност