Обяви За нас Контакти
Продава 3-СТАЕН
град Пловдив, Младежки Хълм
158 500 €
309 999.06 лв.

(1 441 €, 2 818.35 лв./m2)
Не се начислява ДДС
История на цената
Публикувана в 16:32 на 9 декември, 2025 год.
Обявата е посетена 45 пъти.
Площ:
110 m2
Етаж:
2-ри от 6
Строителство:
Тухла, Ще бъде въведен в експлоатация 2026 г.

Описание на имота:


Титан Пропъртис Ви представя тристаен апартамент, част от компелекс от четири новостроящи се жилищни сгради с АКТ 14, находящи се в района на Младежки хълм, които ще бъдат въведени в експлоатация през
2026 г.
В близост за разположени търговски обекти, Медицински университет, болница,детска градина, МОЛ Пловдив, спирки на градски транспорт.

Схемата на плащане е 30/70, като има възможност за закупуване на външни, подземни гаражи и паркоместа на стойност 13 000 евро.

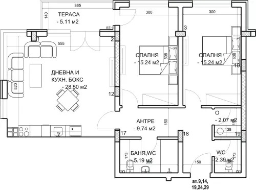
Жилището е ситуирано на 2-ри от 6-ми жилищен етаж и е с площ от 110 кв.м. със следното практично разпределение:Входно антре, дневна с кухненски бокс,две спални, перално помещение, тераса, баня с тоалетна, отделна тоалетна.
Отоплението е електричество. Сградата разполага с асансьор.

За оглед на това и други атрактивни предложения, не се колебайте да ни потърсите на посочения телефон или да ни изпратите данните си чрез формата за запитване на сайта.
Референтен номер: 1141
Особености
Тухла
С преход
Асансьор
С гараж
С паркинг
Саниран
За контакт:
0895671205
Агенция:
ТИТАН ПРОПЪРТИС ПРОДАЖБИ ПЛОВДИВ
0889088654
ТИТАН ПРОПЪРТИС ПРОДАЖБИ ПЛОВДИВ logo
В imot.bg от 2024 г.
titanplovdiv.imot.bg
Адрес:
област Пловдив, гр. Пловдив, гр.Пловдив, бул. Христо Ботев 91, етаж 5, офис 10
ИЗПРАТИ ЗАПИТВАНЕ
ИЗПРАТИ ЗАПИТВАНЕТО

Продава 3-СТАЕН
град Пловдив, Младежки Хълм
Обява: 1c176529075780724

158 500 €
309 999.06 лв.
История на цената
(1 441 €, 2 818.35 лв./m2)

Не се начислява ДДС
ЗАПАЗИ ОБЯВАТА

Местоположение: град Пловдив, Младежки Хълм